VI. kerület, Vörösmarty utca

Eladó / Eladva

  • Ár: 57 900 000
  • Méret: 58m2
  • Szobaszám: 3
  • Emelet: 3/4

Csiszár Imola

irodavezető

+36 70 469 7622

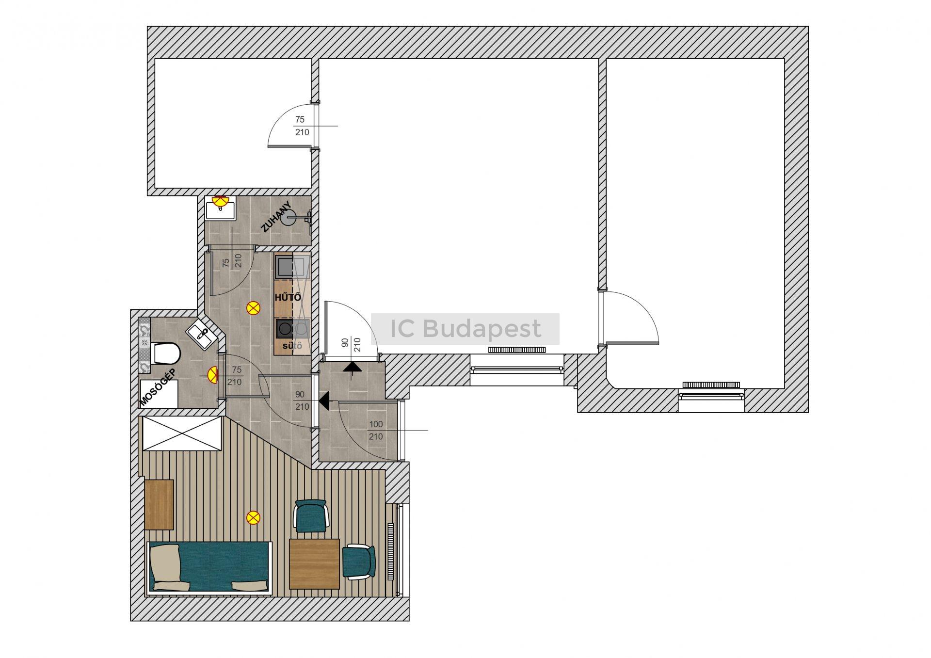
Budapest VI. kerületében, a Vörösmarty utcában, rendezett, jó állapotú társasház 3. emeleti, 58 m2-es, közös bejáraton keresztül megközelíthető 2 különbejáratú lakása eladó. A társasház alacsony lakólétszámú, rendezett, csendes. A 3. emeleten található,  nemrégiben teljeskörű felújításon esett át, minden nyílászáró új, redőnnyel felszerelt. A fűtés a kisebbik lakásban elektromos, a nagyobbikban egyedi cirkó, radiátoros. A lakások burkolatai, szaniterei modernek, igényesek. A kisebbik lakás garzon, optikailag szeparált konyhával, külön WC-vel, apró, tusolós fürdőszobáva. Kiválóan alkalmas egy egyedülálló lakhatására. A nagyobbik lakás amerikai-konyhás nappalival kialakított, kiválóan berendezett, a konyha felszerelt, gépesített. A nappaliból nyílik a tágas, tusolós kialakítású fürdőszoba, ahol a mosógép is helyet kapott. A hálószoba tágas, praktikusan belépős gardróbbal felszerelt, mely a szoba végében kapott helyet. A lakás összes bútorzata új, igényes, fiatalos. Itt klímaberendezés biztosítja a komfortérzetet a meleg nyári napokon. Praktikus kialakításának köszönhetően igazán kényelmes, igényes otthona lehet egy párnak. A kiváló elhelyezkedés, a telejeskörű, igényes felújítás, a kettéválasztás miatti jól kiadhatóság, az alacsony fenntartási költségek miatt remek befektetési lehetőség. 

Elhelyezkedés

További információ

Csiszár Imola

irodavezető


+36 70 469 7622

csiszar.imola@icbdp.hu